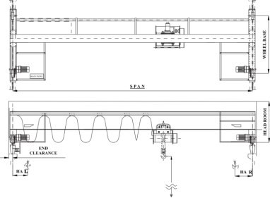
Single Girder EOT Cranes

At SS Cranes India Pvt. Ltd., we design and manufacture Single Girder EOT (Electric Overhead Travelling) Cranes that combine compact design, lightweight construction and superior performance. Built with precision using high-quality components, our cranes are widely recognized for their easy operation, long service life and minimal maintenance.

Single Girder EOT Cranes, Electric Overhead Travelling Cranes and our setup is situated in Pune, Maharashtra, India.
Key Features
The popularity of our Single Girder EOT Cranes comes from their unmatched attributes:
  • Modular design with advanced German motors for smooth operation
  • Lightweight structure ensuring optimized load handling and reduced dead weight
  • Noise-free performance for better workplace efficiency
  • Hardened and ground gearbox for durability and reliability
  • Fully machined end trucks and main body for enhanced stability
  • Maximized working space with efficient headroom and floor utilization
Application Industries
Our Single Girder EOT Cranes are suitable for a wide range of industries where safe, efficient, and economical material handling solutions are required. Some key application areas include:
  • Construction & Infrastructure Projects
  • Automobile and Auto Component Manufacturing
  • Cement and Engineering Industries
  • Warehousing & Logistics Centers
  • Sugar Mills and Food Processing Units
  • Forging & Foundries
  • Textile, Paper, and Packaging Industries
  • General Fabrication & Assembly Workshops
Why Choose SS Cranes?
Our Single Girder EOT Cranes are trusted by industries across India for their efficiency, reliability, and superior build quality. Whether its for a small workshop or a large manufacturing plant, S S Cranes ensures you get the right lifting solution that enhances productivity and safety.
  • Over 12 years of expertise in crane manufacturing and installations across India
  • Customized solutions tailored to diverse industrial requirements
  • Strong nationwide service network for quick support and maintenance
  • A proven commitment to quality, safety, and innovation in material handling equipment
Single Girder EOT Cranes
Single Girder EOT Cranes
Single Girder EOT Cranes
Single Girder EOT Cranes
Single Girder EOT Cranes
Single Girder EOT Cranes
Single Girder EOT Cranes
Single Girder EOT Cranes
Single Girder EOT Cranes
Single Girder EOT Cranes
Single Girder EOT Cranes
Single Girder EOT Cranes
Single Girder EOT Cranes
ss cranes