Double Girder EOT Cranes

At S S Cranes India Pvt. Ltd., we design and manufacture Double Girder EOT (Electric Overhead Travelling) Cranes that deliver unmatched performance, strength, and durability. Engineered for heavy-duty lifting operations, these cranes are widely used in industries that demand high capacity, long spans, and continuous performance.

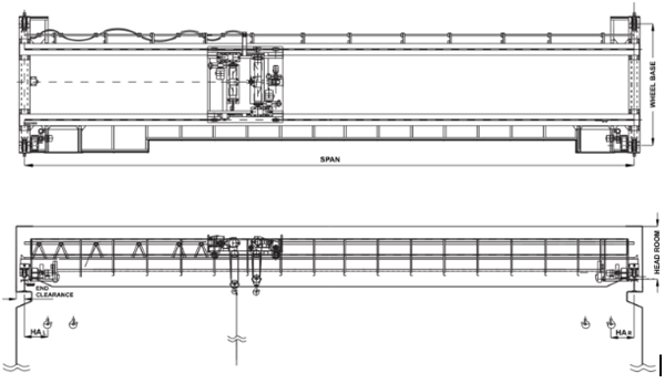
Double Girder EOT Cranes, Electric Overhead Travelling Cranes and our setup is situated in Pune, Maharashtra, India.
Key Features
Our Double Girder EOT Cranes are trusted by industries across India because of their advanced design and superior build quality:
  • High Load Capacity - Suitable for lifting from 5 Tons up to 50 Tons
  • Sturdy Double Girder Design - Ensures strength, stability, and reliability for heavy-duty applications
  • Optimized Headroom & Hook Approach - Provides maximum working space utilization
  • Energy-Efficient Motors - Smooth, vibration-free movement with reduced power consumption
  • Heavy-Duty Gearbox - Hardened and ground gears for long-lasting performance
  • Flexible Operation Modes - Pendant control, radio remote control, or cabin operation
  • Low Maintenance Design - Built with quality components for a long service life
  • Compliance with IS/ISO Standards - Ensures safety and international quality benchmarks
Application Industries
Our Double Girder EOT Cranes are ideal for industries that require reliable, safe, and efficient heavy-duty lifting solutions. Some of the key sectors we serve include:
  • Steel Plants & Rolling Mills
  • Cement & Power Plants
  • Shipbuilding & Aviation
  • Automobile & Heavy Engineering
  • Mining & Construction
  • Forging & Foundries
  • Warehousing & Logistics Hubs
  • General Manufacturing & Fabrication Units
Why Choose SS Cranes?
At SS Cranes India Pvt. Ltd., our Double Girder EOT Cranes stand as a symbol of strength, precision, and efficiency. Designed for industries that cannot compromise on performance, they ensure smooth operations, maximum productivity, and safe material handling.
  • 12+ years of expertise in industrial crane design, installation, and service
  • Pan-India service network ensuring quick response and support
  • Customized crane solutions tailored to specific industrial requirements
  • Commitment to safety, performance, and long-term reliability
Double Girder EOT Cranes
Double Girder EOT Cranes
Double Girder EOT Cranes
Double Girder EOT Cranes
ss cranes